Veldacademie

  • Nl
  • En
  • Wat we doen
  • Vind een project
  • Voor studenten
  • Maak kennis
  • Actueel
Projecten

Leefbaarheid in Oranjeboomstraat

deel deze pagina

Type project:
Afstudeeronderzoek
Status:
Afgerond
Periode:
september 2011 — juni 2012
Partners:
TU Delft
Locatie(s):
Feijenoord (wijk)
Onderwerpen:
Leegstand, Herontwikkeling, Woningvoorraad

Afstudeeronderzoek Eirini Gallou

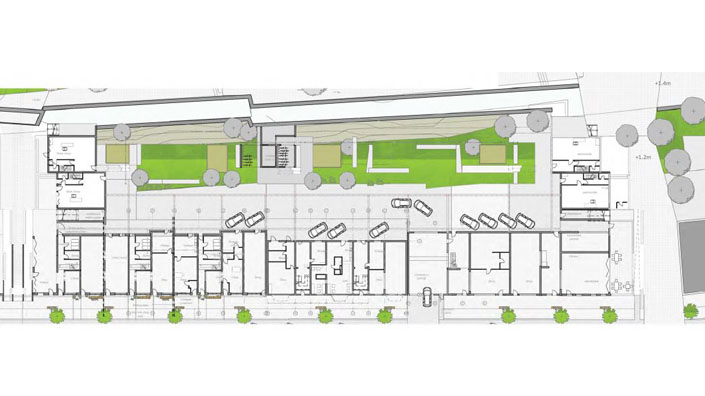
De oprichting van een stedelijke enclave in dit project verhoogt de veiligheid, de sociale samenang en leefbaarheid van een gecombineerd woonblok langs de Oranjeboomstraat.

Downloads
Auteur(s) Datum Type Grootte
PresentationPresentation Eirini Gallou juni 2012 pdf 11,12 MB
PosterPoster Eirini Gallou juni 2012 pdf 909 KB

Bekijk ook

  • Nieuws

    Herontwikkeling bestaande woningvoorraad door rMIT

  • Nieuws

    Veldacademie seminar 19 september

  • Nieuws

    Seminar en expositie ’Kijk maar uit het komt van Zuid’

  • Pilot Blijdorp

    Opdracht

    Een verkennend onderzoek naar perspectieven voor woonzorggebouw Blijdorp binnen een stadsbrede inventarisatie van zorghuisvesting

  • Transforming Housing Heritage

    Opdracht

    Projects for Regeneration of Rotterdam Feijenoord & Lombardijen

  • Ingestorte idealen

    Afstudeeronderzoek

    TU Delft
    Architectuur

  • Living or leaving

    Afstudeeronderzoek

    TU Delft
    Architectuur

  • ShopHouse Transformation

    Afstudeeronderzoek

    TU Delft
    Architectuur

  • Onze mailings ontvangen? Klik hier.
  • Privacyverklaring
↓