Het afstudeeronderzoek making a[nd] living van Ward Alblas is een pleidooi om wonen en werken op wijkniveau weer met elkaar te mengen. Rotterdam staat namelijk voor grote opgaven. In kwetsbare wijken, zoals Feijenoord, is ruim de helft van de mensen financieel afhankelijk en voelt één op de vijf mensen zich eenzaam. Het creëren van gemeenschappen blijkt een effectieve manier om deze problematiek het hoofd te bieden. Tegelijkertijd zien we dat de monofunctionele structuur van deze wijken gemeenschapsvorming juist in de weg staat. Functiemenging op wijkniveau moet daarom weer als uitgangspunt worden genomen om juist de kwetsbare wijken van onze steden sociaal veerkrachtiger en weerbaarder te maken.
Diagram wonen en werken mengen
Maquette pleinzijde
Literatuur & Veldwerk
Kwetsbare wijken kennen vaak een hoog percentage praktisch geschoolde bewoners, wat maakt dat deze gebieden bijzonder geschikt zijn voor de integratie van de maakindustrie. Uit het literatuuronderzoek zijn daarom vier kernprincipes geformuleerd die essentieel zijn voor het succesvol introduceren van de maakindustrie in Nederlandse woonwijken, terwijl ze tegelijkertijd de gemeenschapsvorming bevorderen. Diversiteit speelt hierbij een sleutelrol; door functies te mengen, ontstaat een dynamische omgeving die de hele dag door gebruikt wordt. Het is bovendien van cruciaal belang dat bedrijfsruimtes zorgvuldig worden geïntegreerd in het stedelijk weefsel. Hierbij spelen zonering en flexibiliteit een grote rol spelen om de harmonie met de omgeving te waarborgen. Sociale inclusiviteit vormt een andere belangrijke pijler. Wanneer de maakindustrie aansluit op de aanwezige talenten en kennis van de bewoners, kan ze optimaal bijdragen aan zowel de werkgelegenheid als de sociale cohesie in de wijk. Daarnaast biedt de lokale maakindustrie een unieke kans om de overgang naar een circulaire economie te stimuleren. Logistieke stromen kunnen worden geoptimaliseerd en producten en materialen kunnen binnen de stad worden hergebruikt en gerecycled.
Om de bovengenoemde uitgangspunten te toetsen en specifiëren, zijn er verschillende gesprekken gevoerd met ondernemers uit de wijk Feijenoord. Zo werden onder andere gesprekken gevoerd met een naaiatelier, fietsenmaker en een bedrijf dat tweedehands sneakers schoonmaakt om ze weer een nieuw leven te geven. Al deze ondernemers boden een waardevol perspectief, omdat ze zich niet alleen voor hun bedrijf maar ook voor de gemeenschap inzetten. De resultaten van de interviews zijn zorgvuldig vastgelegd en hebben de basis gevormd voor het ontwerp van een gebouw waarin wonen en werken naadloos samenkomen, met als doel de gemeenschapsvorming optimaal te bevorderen.
De vier pijlers voor succesvolle binnenstedelijke maakindustrie
Mengen op verschillende schaalniveaus
Functiemenging moet verder gaan dan de traditionele opvatting van een commerciële plint met daarboven woningen. In dit ontwerp wordt daarom uitgegaan van functiemenging op verschillende schaalniveaus, zowel verticaal als horizontaal, waarbij functies flexibel blijven en over de tijd kunnen worden aangepast. De begane grond en eerste verdieping zijn gereserveerd voor grotere bedrijven die baat hebben bij een directe connectie met de straat. Op de hogere verdiepingen wordt werken en wonen horizontaal gemengd door woon/werk-galerijen. Hierdoor ontstaat een levendige galerij waar woningen worden afgewisseld met bedrijfsruimte. Zelfs op woningniveau worden wonen en werken met elkaar gemengd. Door middel van een flexibele plattegrond heeft elk appartement de mogelijkheid om een werkruimte aan huis te realiseren.
Doorsnede
Woningplattegrond
Het resultaat van deze functiemenging is een eenduidig, maar dynamisch gevelbeeld met subtiele variaties om de grootschalige bedrijvigheid op de begane grond en eerste verdieping te benadrukken. De verspringende gevel biedt bedrijven de gelegenheid om hun bedrijfsnaam zichtbaar te plaatsen. Tegelijkertijd ontstaan er zo rondom het hele gebouw nisjes die door de bedrijven of bewoners kunnen worden toegeëigend. De toren wordt geaccentueerd door een tweede gevel van geperforeerd staal, waardoor beschutte buitenruimtes worden gecreëerd.
Maquette maakstraat
Impressie toren
Van werkruimte naar gemeenschapsvorming
De werkruimtes binnen het gebouw stimuleren ontmoeting en gemeenschapsvorming door deze strategisch te zoneren. Hiermee wordt de werkruimte ingezet als brug tussen private en publieke ruimtes. Zo creëert de gelaagdheid van het gebouw, met verspringende gevels en horizontale banden, plekken waar bewoners en werknemers elkaar kunnen ontmoeten en samenwerken. Daarnaast is de circulatie door het gebouw zo ontworpen dat de verkeersruimtes voor de logistieke stromen van de bedrijven ook wordt gebruikt als ontsluiting voor de bewoners, zo ontstaat er een makers hal op de begane grond en woon-werkstraten op de verdiepingen.
Doorsnede collage
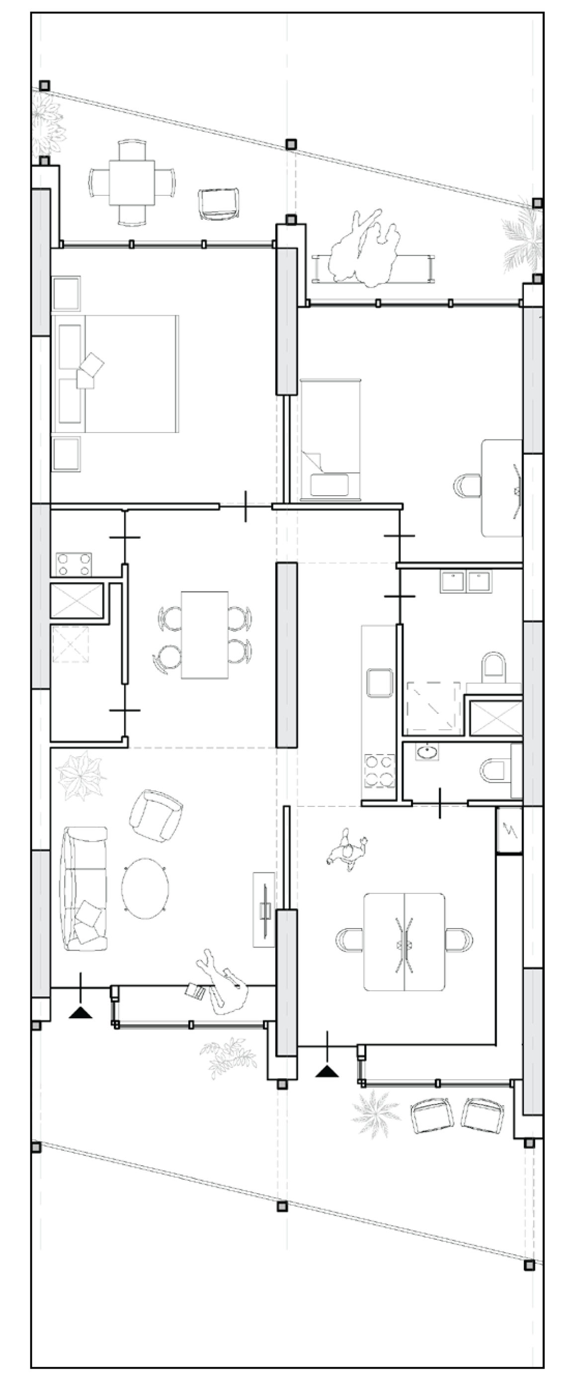
Plattegrond begane grond
Een gebouw voor de stad
Door werken en wonen op wijkniveau weer met elkaar te verbinden wordt niet alleen de lokale economie versterkt, maar kan het arbeidspotentieel in deze wijken ook worden ingezet als aanjager voor de circulaire economie. Zo kan het verwerken van reststromen weer binnenstedelijk worden georganiseerd. Tegelijkertijd vermindert deze aanpak de druk op de infrastructuur doordat mensen dichter bij hun werk kunnen wonen. Dit afstudeeronderzoek en ontwerp laat niet alleen zien dat functiemenging op wijkniveau essentieel is om gemeenschapsvorming te bevorderen, maar toont ook aan dat dit veel meer vlakken leidt tot leefbaardere steden.
Maquette doorsnede
